Te Huur 3 Kamer Appartement Geessinkweg In Enschede

Enschede
Geessinkweg
£ 820.-
 pcm
Gas, water, electricity
excluded
Type of property
Apartment
Acceptance
Empty
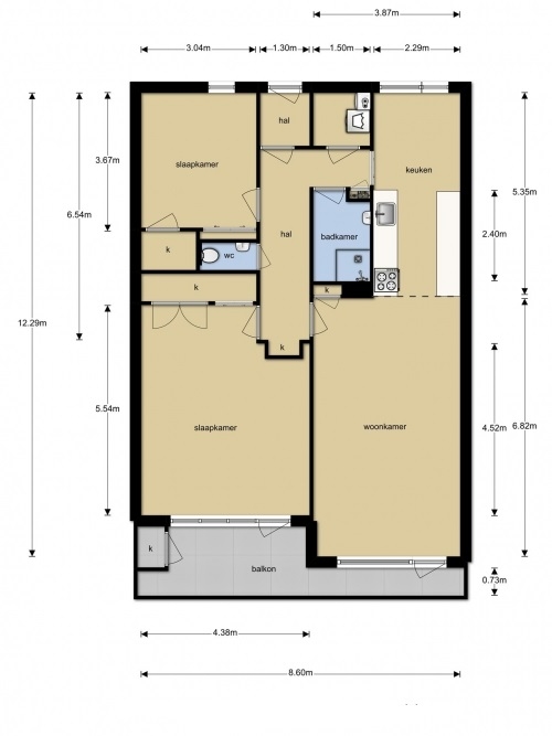
Living area
96m²
Number of rooms
3
Number of bedrooms
2
Available from
20-3-2026
Viewing from
18-3-2026
Selection date
16-3-2026
Checked on: 22-Feb-2026
Register to respond
Agency costs
No
Property
Directly from owner
Deposit
820
Guarantee
Possible
Rent allowance
Not possible
Rental period
Indefinite period
Acceptance
Empty